Home>Santacruz East>Western Suburbs>Jet Trinity Towers

Jet Trinity Towers

RERA
By
Developer Logo
Jet Realty
3.40 Cr - 8.72 Cr
₹44.7K - 48.8K/sq.ft
PropertyPageLocation
Project Location
Santacruz East
PropertyPageLocation
Possession Date
Mar,2029
PropertyProductIconMobile
Developer
Jet Realty
PropertyProductMobile
Products
2, 3, 4 BHK
Own this property from just
1.9 lac/ Month
30%
Down payment
8.35%
Interest Rates
25 Yr
Tenure (Years)

Configurations & Price

apartment price
2 BHK
760 sq. ft.
1 living room, kitchen, 2 bedrooms, 2 bathrooms
760 sq. ft.
3.40 Cr
Price is inclusive of all taxes.
Last updated on Tue Jan 20 2026
apartment price
3 BHK
1177 sq. ft.
1 living room, kitchen, 3 bedrooms, 3 bathrooms
1177 sq. ft.
5.74 Cr
Price is inclusive of all taxes.
Last updated on Tue Jan 20 2026
apartment price
4 BHK
1880 sq. ft.
1 living room, kitchen, 4 bedrooms, 4 bathrooms
1880 sq. ft.
8.72 Cr
Price is inclusive of all taxes.
Last updated on Tue Jan 20 2026

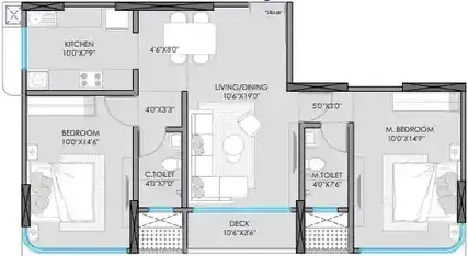
Floor Plan

Floor Plan

About Jet Trinity Towers

Jet Trinity Towers by Jet Realty is a premium residential project located in Santacruz East, Mumbai. Designed to blend modern architecture with functional living, the project offers a perfect mix of comfort, style, and convenience. Its prime location ensures residents enjoy seamless connectivity to business districts, schools, hospitals, shopping hubs, and entertainment zones, making it an ideal choice for families as well as working professionals.

Project Amentities

Children’s Play Area
Children’s Play Area
Senior Citizen 
Siteout
Senior Citizen 
Siteout
Club House
Club House
Jogging Track
Jogging Track
Open Gym
Open Gym
Gymnasium
Gymnasium
Kids’s Pool
Kids’s Pool
Loading maps...

About Developer

Establishment Year
Listed Projects
1
Jet Realty is a distinguished Real Estate Group renowned for its exceptional track record and extensive expertise in developing and executing successful real estate projects. With a commitment to excellence, Jet Realty has consistently delivered outstanding ventures that redefine industry standards. Their portfolio showcases a diverse range of meticulously planned residential and commercial developments, each reflecting their dedication to quality craftsmanship and innovation.

Jet Trinity Towers Brochure

RERA NUMBERS

PR1180002500480
Registered with MahaRera

Other Projects in Santacruz East

Other Projects by Jet Realty

*Disclaimer
Disclaimer: Brickfolio (RERA Registration No. A52100018143) acts merely as an intermediary platform for posting property-related information as provided by sellers, developers, or us. While Brickfolio endeavors to verify the requirement of RERA registration for listed properties, the advertiser may claim that such registration is not applicable. Users are advised to exercise discretion and verify independently. The property data and other content displayed on the website have not been physically verified by Brickfolio, and no representation or warranty is made as to their accuracy, completeness, or reliability. Users must conduct their own due diligence, including legal, financial, and site inspections, before making any investment or purchase decisions. Nothing contained on this platform shall be construed as legal advice, solicitation, or an offer to invest or purchase property. Brickfolio shall not be held responsible for any loss or damage arising out of reliance on the content provided herein.

Project Location

Western Suburbs, Santacruz East

Possession Date

Mar,2029
hero Icon

Developer

Jet Realty
propertyProductIcon

Products

2, 3, & 4 BHK
Own this property from just
1.9 lac/ Month
30%
Down payment
8.35%
Interest Rates
25 Yr
Tenure (Years)
Note: This is an estimate, actual amount may vary.
Still deciding?

Shortlist this property for now & easily come back to it later.