Home>Kandivali West>Suburbs>JE And VEE Shree Gopaldham

Je And Vee Shree Gopaldham

RERA
By
Developer Logo
Je&vee Infrastructur…
2.29 Cr - 5.35 Cr
₹28.5K - 28.6K/sq.ft
PropertyPageLocation
Project Location
Kandivali West
PropertyPageLocation
Possession Date
Dec,2030
PropertyProductIconMobile
Developer
Je&vee Inf…
PropertyProductMobile
Products
2, 3, 4 BHK
Own this property from just
1.3 lac/ Month
30%
Down payment
8.35%
Interest Rates
25 Yr
Tenure (Years)

Configurations & Price

apartment price
2 BHK
802 sq. ft.
1 living room, kitchen, 2 bedrooms, 2 bathrooms
802 sq. ft.
2.29 Cr
Price is inclusive of all taxes.
Last updated on Tue Jan 06 2026
apartment price
3 BHK
1477 sq. ft.
1 living room, kitchen, 3 bedrooms, 3 bathrooms
1477 sq. ft.
4.21 Cr
Price is inclusive of all taxes.
Last updated on Tue Jan 06 2026
apartment price
4 BHK
1878 sq. ft.
1 living room, kitchen, 4 bedrooms, 4 bathrooms
1878 sq. ft.
5.35 Cr
Price is inclusive of all taxes.
Last updated on Tue Jan 06 2026

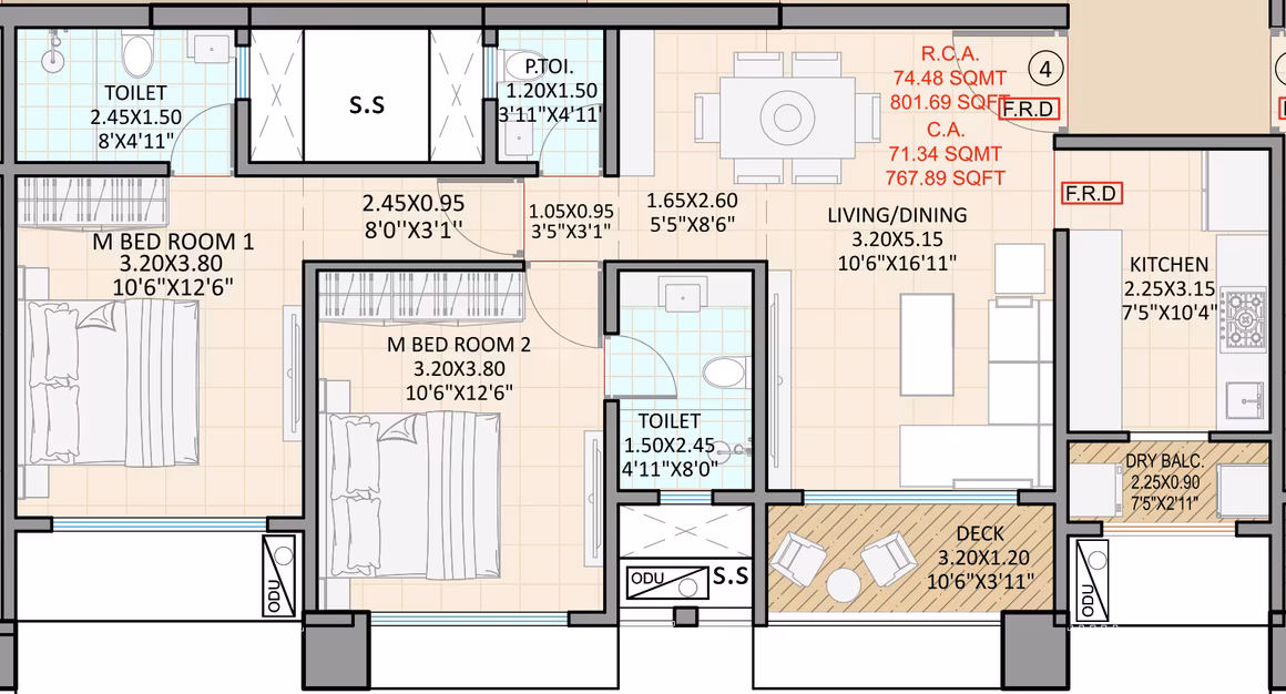
Floor Plan

Floor Plan

About JE And VEE Shree Gopaldham

The "JE And VEE Shree Gopaldham project" appears to be a real estate development, likely in or around Mumbai/Maharashtra, given the context of other similar projects in the region, but specific details aren't readily available in general search, pointing towards it being a niche or local development by a builder like JE & VEE Developers, focused on residential properties with modern amenities for urban living, possibly in areas seeing development like Navi Mumbai or Thane.

Project Amentities

Swimming  Pool
Swimming Pool
Jogging Track
Jogging Track
Children’s Play Area
Children’s Play Area
Gymnasium
Gymnasium
Senior Citizen 
Siteout
Senior Citizen 
Siteout
Loading maps...

About Developer

Establishment Year
2009
Listed Projects
1
Je & Vee Infrastructure is a group of dynamic individuals committed to quality construction. Time lines and client satisfaction are two staunch pillars that guide the working of the firm. The management has been instrumental in delivering a large number of High-End Luxury Apartments and Multi Storey Apartments. It has built a reputation for quality in construction, transparent financial dealings and on-time delivery. Synonymous with rigor and methodicalness, Je & Vee Infrastructure strongly believes in going beyond erecting buildings by providing personal touch and care and building relation for a life time.

JE And VEE Shree Gopaldham Brochure

RERA NUMBERS

P51800079265
Registered with MahaRera

Other Projects in Kandivali West

Other Projects by Je&vee Infrastructure

*Disclaimer
Disclaimer: Brickfolio (RERA Registration No. A52100018143) acts merely as an intermediary platform for posting property-related information as provided by sellers, developers, or us. While Brickfolio endeavors to verify the requirement of RERA registration for listed properties, the advertiser may claim that such registration is not applicable. Users are advised to exercise discretion and verify independently. The property data and other content displayed on the website have not been physically verified by Brickfolio, and no representation or warranty is made as to their accuracy, completeness, or reliability. Users must conduct their own due diligence, including legal, financial, and site inspections, before making any investment or purchase decisions. Nothing contained on this platform shall be construed as legal advice, solicitation, or an offer to invest or purchase property. Brickfolio shall not be held responsible for any loss or damage arising out of reliance on the content provided herein.

Project Location

Suburbs, Kandivali West

Possession Date

Dec,2030
hero Icon

Developer

Je&vee Infrastructure
propertyProductIcon

Products

2, 3, & 4 BHK
Own this property from just
1.3 lac/ Month
30%
Down payment
8.35%
Interest Rates
25 Yr
Tenure (Years)
Note: This is an estimate, actual amount may vary.
Still deciding?

Shortlist this property for now & easily come back to it later.